Ravenswood || Woodend from $679,750

22 Ravenswood Subdivision, Woodend, Waimakariri, Canterbury

Land Size: 400m2

|

House Size: 130m2

3
2
1

Lot 1153 || Ravenswood, Woodend

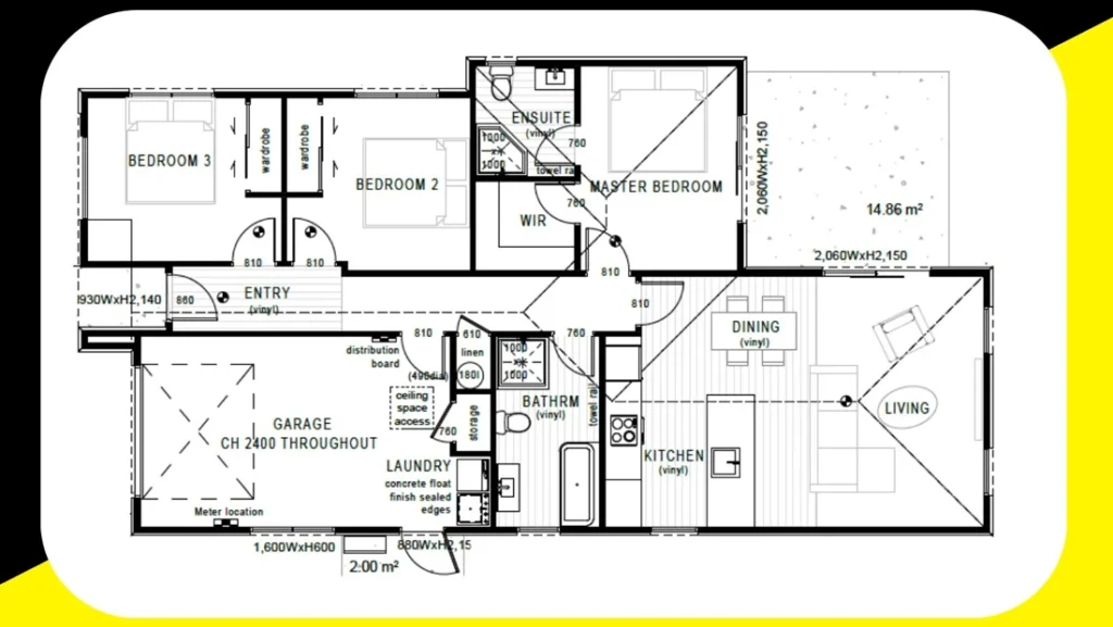
3 Bed | 2 Bath | 130m² Home on 400m² Section

Brand-New Lifestyle – Fixed Price Peace of Mind

Step into your future with this beautifully designed 3-bedroom, 2-bathroom home in the sought-after Ravenswood subdivision. Whether you’re a first-home buyer, downsizer, or savvy investor, this home delivers unbeatable value with Kent Homes’ trusted quality.

An independent rental appraisal indicates a weekly income of $635, equating to a solid annual yield of 4.93%, with strong potential for capital growth in this desirable location.

Why Build with Kent Homes?

  • No franchise fees – better value in your build
  • We employ our own builders – consistent workmanship from start to finish
  • Fixed Price Guarantee with a Master Build contract – no budget blowouts
  • 10-Year Master Build Guarantee – built for peace of mind

Home Features:

  • Premium finishes including stone benchtops and Fisher & Paykel appliances
  • Light-filled, functional layout designed for modern living
  • Soft landscaping included – ready to enjoy from day one
  • Only 25 minutes to Christchurch CBD

With schools, cafés, parks, and essential amenities just minutes away, this home offers the perfect balance of small-town community and city convenience.

Please note: Interior images are from previous Kent Homes builds and showcase the high standard you can expect.

Contact Brian today on 021 972 372 for the full information pack and to secure Lot 1153 before it’s gone.

Ravenswood || Woodend from $679,750 plan

Interested in This House & Land Package?

Get in touch with the Kent Homes team to learn more about this package, check availability, and discuss how we can help make it yours.

Contact Us

More House & Land Packages